SUN.2

SUN.2 | IMG 2169(6)
SUN.2 | IMG 2171(6)
SUN.2 | IMG 2168(6)
SUN.2 | IMG 2173(6)

HUMANITARIO - RÁPIDO - MULTIUSO

El SUN.2 es una estructura prefabricada diseñada para la producción en serie, con miles de unidades fabricadas al mes. Fácil de transportar en contenedores y enviar a cualquier parte del mundo, puede ensamblarse rápidamente sin necesidad de maquinaria y con personal no especializado, gracias a un manual de instalación sencillo y a la codificación numérica de cada componente.

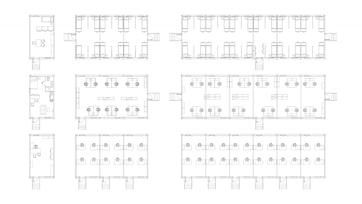
Disponible en varios modelos, permite la creación no solo de alojamientos individuales, sino también de comedores, lavanderías, gimnasios y todas las instalaciones necesarias para establecer un pueblo temporal en ubicaciones remotas.

Gracias a su gran enfoque en el aislamiento y la calidad de los cerramientos, garantiza un rendimiento óptimo en temperaturas extremas de -25°C a +55°C. Su base autoportante permite la instalación en cualquier tipo de terreno sin necesidad de obras civiles especiales, incluso sobre pilotes. La simplicidad y rapidez de montaje lo hacen inmediatamente habitable, siendo una solución ideal para quienes necesitan grandes espacios habitables en entornos extremos con transportes difíciles, pero con tiempos de suministro y construcción muy reducidos.

SUN.2 | il sun2(3)
SUN.2 | pianta sun 2(3)

PEDIR UN PRESUPUESTO

Rellene el siguiente formulario para solicitar información.