SUN.2

SUN.2 | IMG 2169(4)
SUN.2 | IMG 2171(4)
SUN.2 | IMG 2173(4)
SUN.2 | IMG 2168(4)

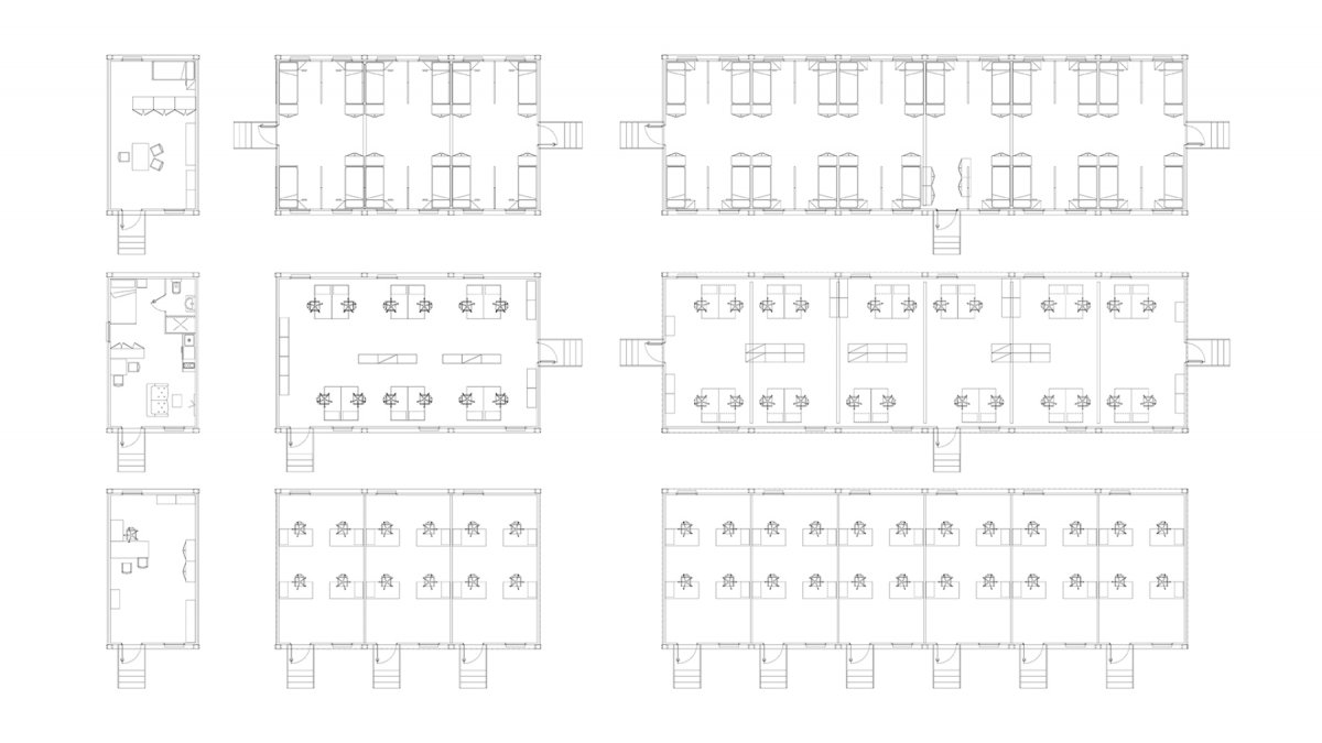
HUMANITARIAN - FAST - MULTIPURPOSE

The SUN.2 is a prefabricated structure designed for mass production, with thousands of units manufactured per month. Easily containerized and transported worldwide, it can be assembled quickly without the need for machinery and by non-specialized personnel, thanks to a simple installation manual and the numerical coding of each component.

Available in different models, it allows the creation of not only single accommodations but also canteens, laundries, gyms, and all the necessary facilities to build a temporary village in remote locations.

With a strong focus on insulation and high-quality windows, it ensures optimal performance in extreme temperatures, ranging from -25°C to +55°C. Its self-supporting base allows installation on any terrain without special civil works or even on stilts. The simplicity and speed of assembly make it immediately habitable—ideal for those who need large habitable spaces in extreme environments with difficult transport conditions but require rapid supply and construction times.

SUN.2 | il sun2(1)
SUN.2 | pianta sun 2(1)

REQUEST A QUOTE

Fill out the form below to request information